如园延清堂建筑复原研究
北京大学考古文博学院 周秋彤
摘要:如园位于长春园东南隅,乾隆三十二年(1767年)建成,嘉庆十六年(1811年)进行大规模重修,是清代皇家园林以园仿园的重要实例,亦是圆明园中首座经过考古发掘的仿江南园林建筑景群。现有研究多集中在史料梳理、园林写仿、如园营建史、与长春园的关系等内容上,鲜少涉及建筑复原层面。延清堂是嘉庆时期如园正殿,本文在考古发掘的基础上,结合历史文献、样式雷图档和实地踏勘情况,深入分析遗存现状信息,对延清堂遗址进行建筑复原研究。基本厘清了延清堂的历史沿革、园林环境、建筑形制、建筑功能,初步对如园造园理念、延清堂的空间营建、植物配置、室内装修、室内空间功能进行探讨,为如园其他建筑复原提供参考。
关键词:延清堂;如园;圆明园;建筑复原;皇家园林
一、 如园沿革
乾隆二十二年(1757年),乾隆皇帝二下江南,首次巡幸南京瞻园,甚爱其景致,在乾隆三十年(1765年)第四次南巡回銮后,“规仿其制于长春园东南隅隙地,建屋宇数楹,命名如园,取义如瞻园之意也”,于乾隆三十二年(1767年)建成。如园写仿瞻园,并非机械抄摹,而是一种意境的再现,“略师其意,就其天然之势,不舍己之所长”,因地因时,贵无拘泥,仅在山水布局及造景手法上保有瞻园风格,二者的相似之处体现在:一、东西横向展开,内向布局;二、以高墙为园林屏障,隔绝尘嚣;三、以石取胜,山峦冈阜,高低错落,气势磅礴;四、用叠山划分两院,院以方池(方塘)为中心,正堂临水,以竹石卉木造景。写仿的如园深得乾隆之意,几十年间提诗上百首,喜爱程度可见一般。
至嘉庆时期,因园荒废许久,“地近河壖渐觉沮洳,风雨剥落多有倾圮”,即着手对如园进行了大规模重修,于嘉庆十六年(1811年)完工。园林格局上大体延续乾隆时期的布局,“前如瞻园之境,后如如园之规”,但对建筑部分有较大改动,不仅对原有建筑进行了重修,而且增加了数座曲廊、亭台,用以强化原有建筑之间的联系,使得建筑占园林比重增大。并且除新赏室外,都另拟他名,“深宁堂”则在此时更名为“延清堂”。同时,嘉庆皇帝为重修后的如园选定十景,并御制“如园十景”诗,御笔题写、刻于石上、立于景旁。
道咸时期延续了嘉庆如园的整体格局,仅对部分山石、驳岸、建筑内外檐以及屋内陈设进行整修。咸丰十年(1860年)遭英法联军劫掠并焚毁,据考古发掘观察到的遗迹现象可知,延清堂等主体建筑铺地金砖表面泛红、全部酥裂,园内道路、山体普遍发红,说明如园遭遇过一场持续时间较长的大火。同治时期对圆明园有重修计划,但对如园的实施情况不明,对比《如园[地盘全样]》(图1)、《长春园全图准底》(图2)、《长春园绮春园圆明园三园地盘河道全图》(图3)、《圆明园长春园万春园遗址形势图》(图4)中的如园格局,并根据遗迹现象推测,同治时期可能对如园进行过小范围修缮,如对挹霞亭台基、待月台台基和延清堂西侧假山进行整修,对镜香池东南出水水道整修,拆除或清理北侧土山之北的六角亭等。

图 1 《如园[地盘全样]》(来源:《国家图书馆藏样式雷图档 圆明园卷续编》第八函 页25)

图 2 《长春园全图准底》中的如园(绘制年代:道光十五年之后、咸丰八年之前(1814-1858)来源:《深藏记忆遗产中的圆明园——样式房图档研究(一)》页201)

图 3 《长春园绮春园圆明园三园地盘河道全图》中的如园(绘制年代:同治十二年前后 来源:故宫博物院数字文物库)
清王朝覆灭后,园子又遭到进一步破坏,一些政客、军阀、官僚、土匪纷纷盗运遗存的建筑材料,包括太湖石、建筑石料和砖瓦等。日寇占领时期有农户入园平山填湖、开田种稻,使得如园遭遇持续不断的破坏,这一状况到新中国成立之后才有所好转。

图 4 《圆明园长春园万春园遗址形势图》中的如园(绘制时间:1933年 来源:圆明园管理处)
由于如园长期掩藏于地下,遗存状况不得而知,直至2012年,北京市文物研究所对如园遗址的西部区域进行了正式考古发掘,2016年至2017年,又对遗址进行了第二期考古发掘。两次考古发掘工作使得如园面貌重现,延清堂遗址即是在第二次考古发掘工作中被清理出来的,这为后续的研究工作提供了重要依据。

图 5 如园考古发掘区域(来源:自绘)
二、 乾隆深宁堂与嘉庆延清堂
(一) 乾隆时期的深宁堂
乾隆时期的如园以叠山划分东西两院,深宁堂为东院正殿,位于全园东北,“诘屈石蹊深乃致”,石蹊两侧“有篁护径玲”,并“有石迎门峻”,是位于曲径通幽处的书堂,给人以“松篁径曲因致远”的体验。而且石砌台阶呈现出“阶草向阳青”的现象,说明松竹遮阴、草木茂盛。此堂“开镜俯流水,展屏背假山”,颇似清代画家袁江所绘《瞻园图》中位于东院中心假山虬松之后的小轩(图6)。结合御制诗中的“廊转虚堂接”“轩庭”等描述,推测深宁堂周围有围合而成的庭院。深宁堂似乎和水面的联系不多,而与之隔池相对的明漪楼却和荷池的互动频繁,或许和深宁堂前遍植松竹、隔绝了水面有关,使得“堂据深宁处”、“书堂静且深”。堂外有松、有竹,透过窗棂可见“几卷芸香常插架,数朵梅芬亦植缶”,堂内“有书义堪玩,弗画景供披”。乾隆三十七至四十年内务府造办处活计档中记录了此时堂内的书画陈设,“明南间画条四张,画春夏秋冬四季花卉”,“东西墙通景大画二张”,“北间罩内南墙画斗一张,画山水”,据此还可知深宁堂大体建筑规模。
乾隆时期的如园是皇帝从长春园去往熙春园的必经之地,自园西的宫门进入,穿过西院由南墙门外复道去往熙春园,因而乾隆时期的如园,西院主殿敦素堂相较于东院深宁堂的主体地位更为突出。

图 6 《瞻园图》东院中心假山虬松之后的小轩(来源:网络)
(二) 嘉庆时期的延清堂
嘉庆重修后的如园,将深宁堂易名为延清堂,成为如园正殿,东院成为园之主院,并且可从延清堂北码头由水路登临如园,园内的游线也相应发生变化。至道咸时期码头逐渐取代了宫门的地位,成为如园主入口,也使得延清堂及东院的主体性更加突出。嘉庆时期的延清堂“规模轩敞,栋宇崇隆”,堂前视野开阔临水,“高堂虚敞面晴川”、“堂临芳渚印漪涟”。隔池对景的二层楼阁含碧楼映入镜香池,池边杨柳池内荷,“好鸟鸣芳树,文鱼戏绮波”。堂前有盆栽的红药、黄菊、蕙兰、梅花,有桃树、有松篁,堂南月台之上立有西洋天棚,堂东登挹霞亭至观丰榭、待月台,堂西有引胜轩、撷秀亭、大石岩。嘉庆重修延清堂的工程对于乾隆时期深宁堂的留存情况不明,考古发掘也未能区分出乾嘉的地层关系,但根据考古发掘可知,延清堂基础完整,为“满堂红”做法,据此推断嘉庆重修时重做了延清堂的建筑基础。本文研究对象即为嘉庆十六年重修之后的延清堂,对乾隆时期深宁堂的复原不做讨论。
(三) 从“深宁”到“延清”
在圆明园中大规模写仿江南园林的举动,不能看做是皇帝个人的爱好与奢靡,其实质是统治者南巡目标的延续和固化,是对中原儒家士大夫文化的认可推崇,是清廷一种长期的“治世之资”和“警示之园”。除了“移天缩地在君怀”的物质表象,对于国家长治久安、江山永固的愿景,才是统治者寄托其园林之上的深意。古人构园提名,皆有托意,“深宁”到“延清”的更替,某种程度上也是乾嘉营园思想的差异:乾隆更偏重内向的“民隐心常念”,提诗落笔在“民生国计愿深宁”,并时时警示自我“讵吾一己求安逸”,强化书堂自省的作用;嘉庆更偏重外向的重农观稼,强化园居理政时“康田在念”的意图,体恤“蓬户瓮牖之疾苦”,希冀国祚延清、“巩固金瓯亿万年”。但无论是“深宁”还是“延清”,均与民安物阜的治国理想、民生国计的深深思虑有关,皇家园林的意涵,相比江南士大夫们的山水园林情趣,还要多几分吞吐寰宇的气魄。
三、 延清堂遗存情况
现已对延清堂遗址进行考古发掘,平面格局清晰可见,唯北侧月台被长春园环园道路占压,未能进行发掘,遗存情况不明。建筑坐北朝南,平面呈长方形,面阔五间,进深三间,南北各有一月台,再北有一临水码头。南月台上原建有西洋木架天棚一座,现已无存,仅存磉墩坑。延清堂原有基础保存较好,尚有部分散水、陡板石、柱顶石、地砖,位置基本明确,但损毁严重,三合土垫层直接裸露在外,边缘风化、塌陷严重,地面以上木构全部无存。

图 7 延清堂遗址平面正射影像(来源:圆明园管理处)
表 1延清堂遗址现状
|
名称 |
建筑部位 |
材质 |
现状病害 |
病害情况说明 |
|
大殿 |
整体 |
/ |
植物生长 |
植被生长茂盛,长满杂草。 |
|
三合土垫层 |
三合土 |
风化、渗水、坍塌 |
三合土垫层裸露,表面风化,雨水渗入,边缘处水土流失、坍塌严重。 |
|
|
柱础石 |
石 |
缺失 |
原应有50个柱础,缺失23个。 |
|
|
风化、酥碱、位移、破损 |
现存27个柱础石均有破损,风化、酥碱严重。 |
|||
|
陡板石 |
石 |
缺失 |
陡板石大多已不存,严重缺失。 |
|
|
风化、酥碱、开裂、位移 |
残存陡板石断裂,风化、酥碱、片状剥落、开裂明显,位移、破损严重。 |
|||
|
墁地 |
砖 |
缺失 |
台面墁地方砖大面积缺失。 |
|
|
残损 |
大殿第二进西稍间为粉彩瓷砖墁地,大部分已被扰乱,局部残留残损严重。 |
|||
|
酥裂 |
残存金砖残损严重,金砖表面泛红,全部酥裂。 |
|||
|
散水 |
石片、砖 |
缺失 |
石片散水严重缺失,仅东侧残存较为完好。 |
|
|
风化、酥碱、破损 |
残存石片散水风化、酥碱,存在破损。 |
|||
|
南月台 |
三合土垫层 |
三合土 |
风化、酥碱、破损 |
地面白灰垫层裸露,表面风化、酥碱、粉化,表面呈碎块状。 |
|
风化、渗水 |
三合土垫层裸露,表面风化,雨水渗入,边缘处水土流失。 |
|||
|
植被生长 |
存在杂草生长。 |
|||
|
磉墩、拦土墙 |
石、砖 |
缺失 |
拦土墙大部分不存。 |
|
|
阶条石、台帮 |
/ |
全部缺失 |
台明部分全部无存,阶条石、台帮均无存。 |
|
|
墁地 |
砖 |
缺失 |
台面方砖墁地缺失,仅西北角尚存一块残方砖。 |
|
|
踏跺 |
/ |
缺失 |
延清堂正中南侧残留一个长方形坑,台阶缺失。 |
|
|
散水 |
石片、砖 |
缺失 |
月台东侧、西侧残存石片散水,其余石片散水缺失。 |
|
|
风化、酥碱 |
残存石片散水风化、酥碱。 |
|||
|
西洋天棚 |
---- |
/ |
全部缺失 |
磉墩均已不存,仅余磉墩坑。 |
|
北月台 |
整体 |
/ |
现代建设占压 |
遗址中部被公园道路占压。 |
|
三合土垫层 |
三合土 |
风化、渗水 |
三合土垫层裸露,表面风化,雨水渗入,边缘处水土流失、轻微坍塌。 |
|
|
台帮 |
石 |
残损 |
陡板石残留的石条比三合土垫层低,裸露处残损。 |
|
|
阶条石 |
/ |
缺失 |
阶条石缺失。 |
|
|
墁地 |
砖 |
缺失 |
台面方砖墁地缺失,仅西南残留少部分金砖。 |
|
|
破损 |
西南金砖铺地破损。 |
|||
|
散水 |
石片、砖 |
缺失 |
月台东、西两侧残存石片散水,其余散水缺失。 |
|
|
风化、酥碱、破损 |
残存石片散水风化、酥碱、破损。 |
|||
|
码头 |
整体 |
/ |
植被生长 |
存在有深根系乔木一棵、杂草生长。 |
|
踏跺、燕窝石 |
石 |
缺失 |
踏跺石缺失,仅最底层残留。 |
|
|
风化、酥碱、开裂、破损 |
残留踏跺石、燕窝石存在风化、酥碱、开裂、破损。 |
|||
|
垂带 |
石 |
位移 |
垂带石为后期归安,独立放置。周边散落石构件疑为码头构件。 |
|
|
风化、酥碱、开裂、破损 |
石构件风化、酥碱,局部开裂、断裂、破损。 |
|||
|
栏板 |
/ |
全部缺失 |
栏板缺失。 |
四、 延清堂建筑复原
(一) 复原依据
1、 直接依据
考古成果和现场实测是复原的直接依据,清代御制诗文、清宫档案是研究的直接文献依据,与延清堂有关的样式雷图档是主要图档依据。复原使用的样式雷图档共有8张,其中“如园[地盘全样] (样385-0015)”是如园总平面图,图面信息丰富,共有四种笔迹:细致墨笔、细致朱笔、粗糙墨笔、粗糙朱笔,以及一些局部补丁,未能判定绘制年代。其余与延清堂有关的图档还有地盘样、天棚样。地盘样的图中,延清堂[地盘样](样065-0002-04)为贴黄签的呈样,如园延清堂[地盘样](样065-0002-03)标注了进深方向大尺寸,延清堂[地盘尺寸样](样065-0002-02)标注前檐、明间和次间第一进、第二进尺寸信息,均采用“苏州码子”,据此可识读图档上的尺寸信息。
表 2与延清堂有关的样式雷图档
|
序号 |
图纸名称 |
来源 |
编号 |
|
1 |
如园[地盘全样] |
国家图书馆藏 |
385-0015 |
|
2 |
延清堂[地盘样] |
国家图书馆藏 |
065-0002-04 |
|
3 |
如园延清堂[地盘样] |
国家图书馆藏 |
065-0002-03 |
|
4 |
延清堂[地盘尺寸样] |
国家图书馆藏 |
065-0002-02 |
|
5 |
[延清堂月台天棚立样] |
国家图书馆藏 |
065-0003 |
|
6 |
[延清堂地盘样及天棚立样糙底] |
国家图书馆藏 |
065-0004-01 |
|
7 |
[延清堂天棚立样糙底] |
国家图书馆藏 |
065-0004-02 |
|
8 |
[如园含碧楼地盘样] |
国家图书馆藏 |
065-0005 |
2、 间接依据
清工部《工程做法》和《圆明园内工则例》是圆明园工程管理部门主要使用的管理文件,是复原主要的参考依据。另外,同时期、同地区、同类型的建筑也是对比研究的案例,现存实例有故宫含清斋、故宫延寿堂、故宫景福宫、故宫建福宫花园静怡轩、颐和园景福阁、乐善园鬯春堂、沈阳故宫继思斋,以及《圆明园四十景图》中长春仙馆墨池云、西峰秀色含韵斋、接秀山房观澜堂、九州清晏慎德堂等,与如园延清堂建筑形制类似,均为复原参考。
(二) 建筑基础
建筑基础的做法是复原工作能直接获取的信息,延清堂基础采用满堂红做法,根据考古发掘时大殿西南角的解剖沟可知,构筑大殿时先整体开挖换土、挖基槽,大殿和南北月台基槽同做,且西北部向西延伸与引胜轩基槽相连。底部先在生土上打地钉,据清抄本《圆明园工程则例》中记载“地脚刨槽下柏木地丁,如旱槽每见方一丈用地丁一百四十四根,河身水槽每见方一丈用地丁一百九十六根”。其上砌筑磉墩和拦土墙,外皮用青砖砌成,内里用石块、砖块填馅,白灰灌浆。其内夯筑三合土垫层,外围一圈土衬石,用长短不均的石条平铺而成,外留金边,土衬石之上立陡板石。台明四周有石片散水,大殿与南月台、北月台散水相连,用大小不均、颜色不一的薄石板平铺于地。
(三) 建筑平面复原
建筑遗址平面的复原是后续复原的基础,最先需要确定的是营造尺的使用,虽然默认在古代建筑施工中为了方便计算,柱间距常取整尺或半尺,但样式雷图档中所反映的并非如此,未体现出明显的整尺半尺倾向,也常有精确到寸的数值。因此,以此推算营造尺并不适用于延清堂。清代营造尺现存实物较多,有学者研究确定清代北京地区木工常用木工尺长为32厘米。另据笔者现场实测柱网数值,反推营造尺长也近似等于32厘米,因此,复原延清堂采用的营造尺长即为32厘米。需要说明的是,样式雷图档中有三张标注了平面尺寸,但三张数据值并不一致,可能存在设计图、实测图、施工图的区别 。经笔者现场实测,虽存在一定误差,但基本接近[延清堂地盘样糙底](样065-0004-01)中的数值,笔者猜测,此图是为建延清堂天棚而进行的踏勘测绘图,因此与设计图存在误差,但更接近建成之后的实际尺寸。故本次平面复原以实测和糙底图档数据为主,并依据其他数据进行误差矫正。

图 8 [延清堂地盘样糙底](样065-0004-01)(来源:《国家图书馆藏样式雷图档 圆明园卷续编》第八函 页39)
1、 延清堂大殿平面复原
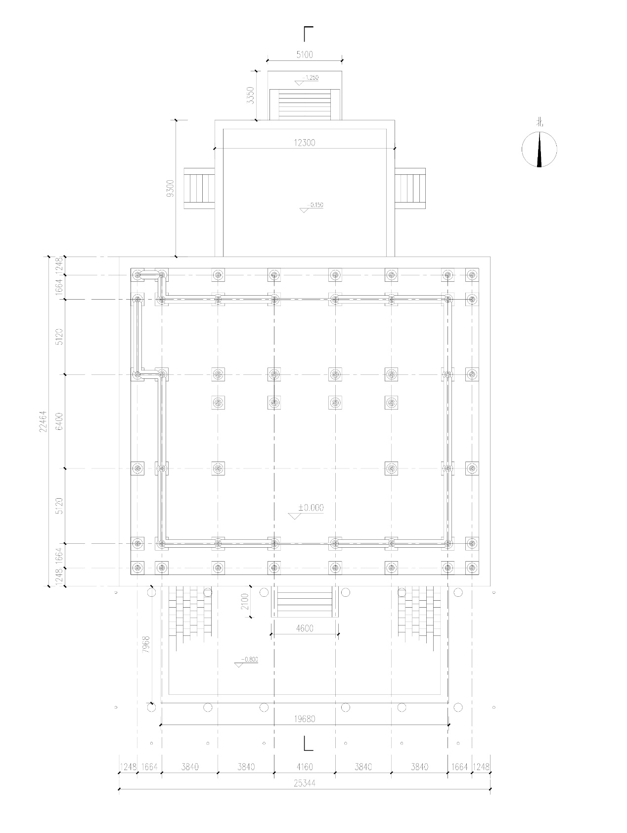
台基 平面呈长方形,东西长25.344米,南北宽22.464米,高1米,建筑面积569平方米。陡板体量较大,为混沌阶条做法,台明下出三尺九寸(1.248米)。有柱顶石50个,金柱柱顶石尺寸为(0.9×0.9×0.28)米,古镜直径0.68米。
平面柱网 面阔五间,进深三间,带周围廊,明间第一进减柱造。通面阔22.848米(七丈一尺四寸),其中:明间面阔4.16米(一丈三尺),次间和稍间面阔3.84米(一丈二尺),廊深1.664米(五尺二寸)。通进深19.968米(六丈二尺四寸),其中:第一进5.12米(一丈六尺),第二进6.4米(二丈),第三进5.12米(一丈六尺),廊深1.664米(五尺二寸)。
铺地 金砖墁地,错缝平铺,金砖的规格分为两种,一种为(0.7×0.64×0.08)米,一种为(0.64×0.64×0.08)米。第二进西稍间为粉彩瓷砖墁地,瓷砖铺于一个长方形的方框内,方框南北长5米,宽2.25米,四周栽牙子砖,宽约0.15米,瓷砖的规格为(0.39×0.39×0.08)米,瓷砖空心,里面灌细沙,起到保温和防潮之作用。
踏跺 大殿明间前有垂带踏跺,东西长4.6米,南北宽2.1米,根据考古发掘痕迹可知共有四踩,每踩厚0.16米,宽0.416米。四角有云步踏跺,用未经加工的太湖石码成。
2、 南月台平面复原
南月台平面呈长方形,东西长19.680米,南北宽7.968米,台基高0.16米,阶条石宽0.576米。方砖墁地,错缝平铺,方砖规格为(0.48×0.48×0.06)米。
3、 北月台平面复原
北月台东西长12.3米,南北宽9.3米,台基高0.85米。东西两侧有抄手踏跺,根据样式雷图档可知有四踩,推算每踩厚0.16米。金砖墁地,铺法为南北向照缝东西隔层照缝。
4、 码头平面复原
码头东西长5.1米,南北宽3.35米,低于北月台台基1.1米。根据遗存石条可知,每踩厚0.32米,垂带长2.1米,宽0.64米,高1.25米,上安有栏板或栏杆。

图 9 如园延清堂平面复原图(来源:自绘)
(四) 建筑立面复原
1、 屋顶形制
清中期以后木料大料奇缺,《圆明园内工则例》所列木料尺寸最长的梁仅有20尺(6.4米),因此为满足室内大空间的使用需求,出现了多座勾连搭式建筑。据内务府奏销档中记载,延清堂为三卷殿,有周围廊,且在[延清堂天棚立样糙底](样065-0004-02)中所绘檐柱柱头之上无斗栱,因此延清堂按照无斗栱三卷勾连搭歇山屋顶进行复原。延清堂屋面应为灰瓦屋面,圆明园中的建筑除去正大光明殿、安佑宫、舍卫城等少数朝寝、礼制、宗教性质的建筑使用琉璃瓦,绝大多数采用布瓦,目的在于与山水环境相容,营造自然天成的园林氛围。据延清堂考古发掘出土情况看,共有板瓦11块、筒瓦4块、勾头9块、滴水17块,均为布瓦,仅在大殿与引胜轩交接处发现琉璃瓦残块7块,颜色有黄、蓝两种,用途不明,或可是后代扰乱。

图 10檐柱柱头之上无斗栱(来源: [延清堂天棚立样糙底] 样065-0004-02)
2、 大木构架
园林建筑造型轻巧,体形自由,在复原屋身及梁架部分时,需综合各种信息进行判断、取值。大殿柱顶石未设管脚榫,但古镜中心存在圆形剁斧痕迹,应为立柱区域,实测金柱柱础石上剁斧痕迹直径0.4米,残存檐柱柱础石破损严重,剁斧痕迹直径约为0.36米。延清堂[地盘尺寸样](样065-0002-02)标记檐柱柱径一尺一寸五(0. 368m),金柱柱径一尺二寸五(0.400m),与实测数值基本一致。并依清工部《工程做法》中规定,无斗栱建筑,以檐柱柱径为参数,计算其他构件尺寸。
|
|
|
|
图 11 如园延清堂檐柱柱础石(来源:自摄) |
图 12 如园延清堂金柱柱础石(来源:自摄) |
延清堂梁架结构为五开间三卷勾连搭歇山形式,前、后卷进深同,中卷进深较大。从现存实例看,故宫景福宫与延清堂的平面尺寸接近,其前后卷檐步约五举,上金步约六五举,比延清堂平面尺寸略大的颐和园景福阁,中卷最陡的上金步也仅七五举,总体来说三卷举架变化不大,流线缓和。清工部《工程做法》八檩卷棚大木做法中提到,檐步五举,除顶步长外匀分步架。综上延清堂采用前后卷五檩、中卷六檩,三卷顶步分架相同,前后卷檐部五举、前后卷上金步按六五加举,中卷下金步六五举,上金步六五举。

图 13 故宫景福宫剖面图(来源:天津大学建筑学院)

图 14 颐和园景福阁剖面图(来源:天津大学建筑学院)

图 15 如园延清堂剖面复原图(来源:自绘)
3、 西洋天棚
据清内务府营造司记录,嘉庆十六年重修工程完工后即添修西洋木架天棚,档案中关于延清堂西洋天棚的记录一直持续到道光年间。样式雷图档中有三张与天棚有关的图档,两张为糙底,一张为呈样。嘉庆十九年至二十五年有关于西洋天棚“安挂之袷布坡檐”“袷(夹)布走廊”的记录,道光七年关于天棚的描述中有天井及东西斜面,但样式雷图档上绘制的天棚套顶为平顶,且嘉庆十七年后的档案未见天棚重修记录,据此推测绘制内容应为嘉庆时期添修图档,故天棚复原依据此图形制。

图 16 如园延清堂正立面复原图(来源:自绘)

图 17 如园延清堂东立面复原图(来源:自绘)
(五) 其他
1、 室内装修复原讨论
延清堂的大进深为室内多种空间利用提供可能,各式花罩隔断将空间分割,形成开敞式、隔绝式、虚拟式、渗透式等多种形式,灵活多变,空间层次活泼丰富。样式雷地盘图上反映了丰富的内檐装修信息,有隔扇门、槛窗、支摘窗、碧纱橱、落地罩、圆光罩、栏杆罩、高床、矮床、万字炕等。延清堂内部以第二进后金柱为界划分前后两部分:前部为开敞连通性空间,使用虚拟隔断(如栏杆罩)分隔;后部为封闭、半封闭的小型空间,用虚拟隔断(如落地罩、天然罩)、围合型隔断(如碧纱橱、板墙带门)以及完全隔断的板墙进行空间划分。

图 18 延清堂室内装修(来源:据样式雷图档改绘)
嘉庆时期,延清堂内安有锦欢门幡,东次间南夹道西墙门上有画斗。咸丰末年《圆明园匾额略节》中记载延清堂外檐悬挂匾额“延清堂”和“无暑清凉”,堂内有内檐匾“境拟仙壶”,及门筒额“碧树周阿”和“红楣纳景”。
2、 室内空间使用功能推测
延清堂是皇帝读书、赏景、休息、进膳、消寒避暑的书堂。大殿第一进采用减柱造,获得了极开敞的中厅空间,与两稍间在空间上连通,走进此堂,园之正殿的气势呼之欲出。第二进两稍间与中厅有碧纱橱相隔,形成封闭室内空间,其中西稍间高床前铺设空心粉彩瓷砖,隔潮保暖之用,应为读书久坐之地。第三进空间分隔细密,形成不规则屋室,除中间夹道用于通行,两侧均为封闭内向空间,均设有高矮床,应是皇帝休憩之所。

图 19 延清堂内部空间使用功能及线路(来源:据样式雷图档改绘)
五、 结语
建筑复原研究旨在科学、完整的还原建筑的历史形态,发挥建筑遗址的史料价值,为解读历史提供更多参考依据。延清堂作为嘉庆时期如园正殿,历经清代皇家园林的盛衰变迁,遭遇了清末国家动荡之下劫掠与焚毁,幸而仍留存有大量遗迹遗物,经近年考古发掘重现天日,为今日重读圆明园造园艺术提供可能。现有研究多集中在史料梳理、园林写仿、营建历史、与长春园的关系等内容上,关于延清堂的建筑复原,陈鹏有过一定讨论,但随着整理研究工作不断推进,其成果可做进一步更新。本文在对延清堂建筑的复原过程中的揭示了如园作为皇帝之园的造园理念、空间营建、植物配置、功能需求、室内装修,为理解清代皇家园林正殿的建筑形制、建筑工艺技术、建筑材料提供依据,试图以单体建筑的写实,窥探整个皇家园林的意涵。为如园其他建筑复原提供参考,为下一步遗址保护工作提供借鉴。
参考文献
[1] 何瑜编著. 清代圆明园御制诗文集[M]. 北京:中国大百科全书出版社, 2020.01.
[2] 中国第一历史档案馆编. 圆明园[M]. 上海:上海古籍出版社, 1991.05.
[3] 国家图书馆编. 国家图书馆藏样式雷图档圆明园卷续编[M]. 北京:国家图书馆出版社, 2017.
[4] 郭黛姮编著. 远逝的辉煌 圆明园建筑园林研究与保护[M]. 上海:上海科学技术出版社, 2009.08.
[5] 郭黛姮,贺艳著. 深藏记忆遗产中的圆明园 样式房图档研究[M]. 上海:上海远东出版社, 2016.05.
[6] 贾珺著. 圆明园造园艺术探微[M]. 北京:中国建筑工业出版社, 2015.02.
[7] 圆明园管理处编. 圆明园百景图志[M]. 北京:中国大百科全书出版社, 2010.09.
[8] 王世襄主编;清代匠作则例 第壹卷 内庭圆明园内工诸作现行则例[M]. 郑州:大象出版社, 2000.04.
[9] 王璞子主编;故宫博物院古建部编. 工程做法注释[M]. 北京:中国建筑工业出版社, 1995.05.
[10] 梁思成著. 清式营造则例[M]. 北京:清华大学出版社, 2006.04.
[11] 刘大可著. 中国古建筑瓦石营法 第2版[M]. 北京:中国建筑工业出版社, 2015.05.
[12] 马炳坚著. 中国古建筑木作营造技术 第2版[M]. 北京:科学出版社, 2003.10.
[13] 郭黛姮著. 华堂溢采 中国古典建筑内檐装修艺术[M]. 上海:上海科学技术出版社, 2003.09.
[14] 故宫博物院著. 圆明园匾额楹联通解[M]. 故宫出版社, 2017.10.
[15] 贾珺.长春园之如园与江宁瞻园[J].建筑史,2009(01):126-134.
[16] 袁蓉.从江南名园到皇家苑囿——瞻园和如园造园艺术初探[J].东南文化,2010(04):115-120.
[17] 陈鹏. 有泉有竹清幽致,曰室曰斋淳朴敦——长春园如园研究[D].天津大学,2020.
[18] 陈鹏,张凤梧. 长春园如园营建考[C] .2020年圆明园研究保护利用国际学术研讨会论文集. 2021:74-81.





